Informácie o nehnuteľnosti
BudovaA3
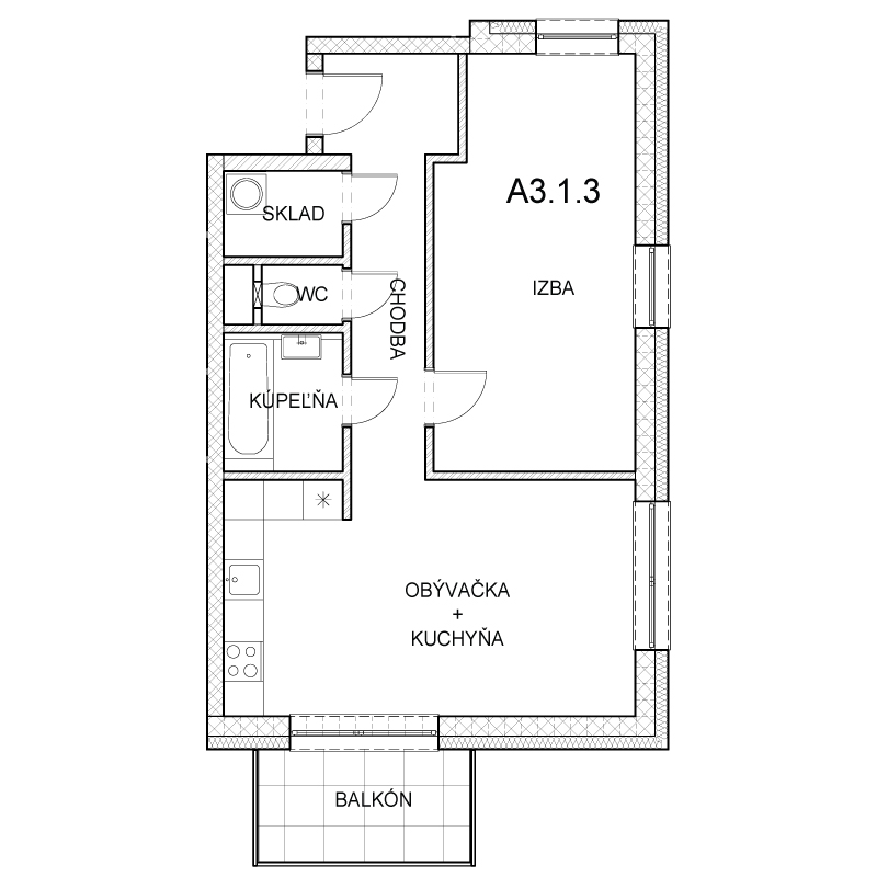
Byt A3.1.3
Počet izieb 2
Poschodie 1
Celková plocha bytu 56,4 m2
Cena s DPH €
Virtuálna prehliadka
Hypotekárna kalkulačka
| Názov miestnosti | Plocha m2 |
| Izba | 18,4 |
| Obývačka + kuchyňa | 22,1 |
| Kúpeľňa | 3,8 |
| WC | 1,1 |
| Sklad | 2,3 |
| Chodba | 8,7 |
| Celková plocha bytu | 56,4 |
| Balkón | 5,7 |
Predaný byt